LIVA plafond alvéolaire multidirectionnel

plafond alvéolaire offrant un large choix de conception

Le plafond multidirectionnel alvéolaire LIVA impressionne par son aspect homogène et aérien. Les lames en aluminium sont disposées à angle droit ou 45° les unes par rapport aux autres et peuvent être de différentes hauteurs ce qui donne un large choix de réalisations. Le plafond acquiert un aspect dynamique pour personnaliser l’espace.

  • Chaque rangée de lames est démontable et rabattable séparément.

Données techniques

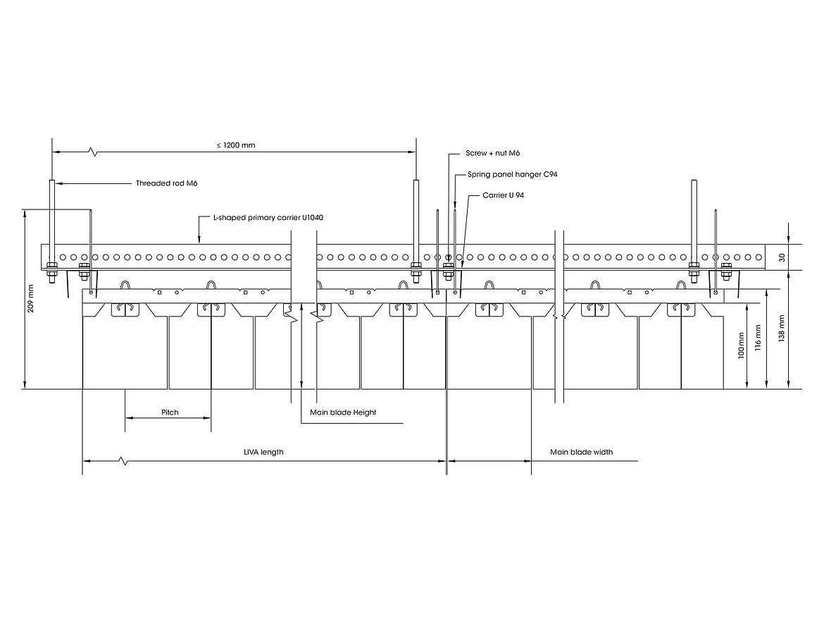
Dimensions

Largeur x hauteur : 98 x 100 mm, 150 mm, 200 mm
Pas: 100 mm, 120 mm
 

Matière et finition

Aluminium 0,8 mm
Lames : blanc, noir, autres coloris RAL sur demande
 

Confort acoustique

Absorption acoustique : en combinaison avec l’absorbeur large bande dur-SONIC TUBE (α= 0,50 ; NRC = possible jusqu’à 0,45)

Téléchargements

Références

Ouverture, transparence, légèreté … une conception du design moderne que nous modélisons au travers de nos plafonds simple peau, double peau, linéaires et multidirectionnels.
La création d’ambiances n’a plus de limites dans vos projets avec nos systèmes d’éclairages intégrés et la complémentarité des plafonds métalliques du groupe durlum.

Retrouvez nos derniers projets de plafonds alvéolaires ici >